Το έγγραφο της άδειας που χορηγήθηκε για τις εργασίες στο κτίριο όπου κατέρρευσε το μπαλκόνι και προκάλεσε τον θάνατο μιας 43χρονης γυναίκας στην Κόρινθο φέρνει στο φως της δημοσιότητας το newsit.gr.
Λίγες μέρες στην Ελλάδα για χαλάρωση και για τις διακοπές του Πάσχα μετατράπηκαν σε τραγωδία για την άτυχη 43χρονή που βρισκόταν στην Κόρινθο με την οικογένεια της και καταπλακώθηκε από μπαλκόνι σε κεντρικό σημείο.
Όλα έγιναν τις μεσημεριανές ώρες του Σαββάτου (04.04.2026), όταν ξαφνικά κατέρρευσε τμήμα του μπαλκονιού. Η γυναίκα περπατούσε μαζί με τον σύζυγό της και τα τρία ανήλικα παιδιά τους στην οδό Πηγάσου, στην περιοχή Καλάμια Κορίνθου, όταν συνέβη το μοιραίο. Δεν πρόλαβε να αντιδράσει και εγκλωβίστηκε κάτω από τον όγκο των μπάζων και των κομματιών τσιμέντου, τα οποία εκτιμάται ότι ζύγιζαν έως και 2,5 τόνους.
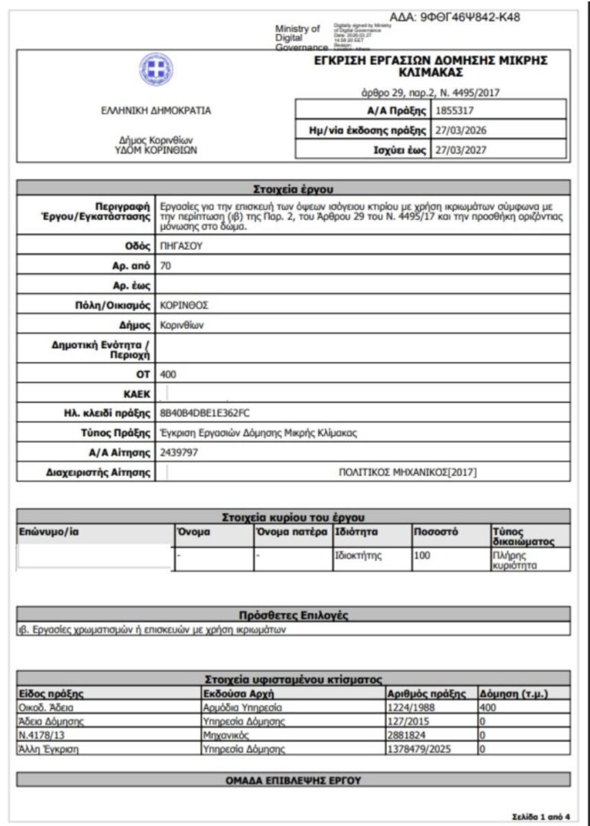
Σύμφωνα με πληροφορίες το συγκεκριμένο κτίριο εδώ και περίπου 10 χρόνια ήταν εγκαταλελειμμένο και το 2025 αγοράστηκε από νέο ιδιοκτήτη και μια εταιρία ανέλαβε την διαδικασία συντήρησης του. Στο έγγραφο που έχει ανέβει στη Διαύγεια φαίνεται η εν λόγω εταιρία να ζητάει άδεια μικρής κλίμακας για εργασίες και για επισκευή των όψεων του ισογείου και μάλιστα θα τοποθετούσαν και σκαλωσιές. Η συγκεκριμένη άδεια εγκρίθηκε στις 27 Μαρτίου προκειμένου να ξεκινήσουν τις εργασίας στο κτίριο.
Συγκεκριμένα στο έγγραφο που ανέβηκε στη Διαύγεια για το κτίριο στην οδό Πηγάσου 70 αναφέρεται: Εργασίες για την επισκευή των όψεων ισόγειου κτιρίου με χρήση ικριωμάτων σύμφωνα με την περίπτωση (ιβ) της Παρ. 2, του Άρθρου 29 του Ν. 4495/17 και την προσθήκη οριζόντιας μόνωσης στο δώμα.


«Δεν είχε ληφθεί κανένα προστατευτικό μέτρο»
Ο Δήμαρχος Κορίνθου Νικόλαος Σταυρέλης μιλάει στο newsit.gr για το περιστατικό αναφέροντας ότι είχε δοθεί η άδεια από την πολεοδομία μικρης κλίμακας όμως δεν είχαν παρθεί τα σωστά μέτρα.
«Πρόκειται για ένα κτίριο, ισόγειο κατάστημα, το οποίο εδώ και 10-15 χρόνια δεν λειτουργούσε. Το 2025 αγοράστηκε από άλλον ιδιοκτήτη, από εταιρεία που δεν γνωρίζω ποια είναι. Στη συνέχεια, στις 26-27 Μαρτίου εκδόθηκε άδεια από την Πολεοδομία, αυτόματη άδεια μικρής κλίμακας για εργασίες στο κτίριο, δηλαδή για συντηρήσεις, επισκευές, σοβάδες και παρόμοιες παρεμβάσεις.
Από ό,τι ενημερώθηκα από περίοικους, γιατί επίσημα δεν αφορά τον δήμο, έγιναν κάποιες εργασίες για να ελεγχθούν οι κολώνες και η κατάσταση του κτιρίου, γι’ αυτό φαίνονται και τα οπλισμένα σκυροδέματα. Δεν είχε ληφθεί όμως κανένα προστατευτικό μέτρο, δεν είχε κλείσει το πεζοδρόμιο, δεν είχαν μπει τα αυτονόητα μέτρα ασφάλειας, και δυστυχώς αυτό δεν έγινε. Δεν μιλάμε για πτώση σοβά ή ενός τούβλου. Έπεσε ολόκληρο μπαλκόνι, με αποτέλεσμα να έχουμε αυτό το τραγικό συμβάν. Μια 43χρονη Γερμανίδα τουρίστρια, που είχε έρθει με την οικογένειά της για διακοπές στην Κόρινθο ενόψει Πάσχα, έχασε τη ζωή της. Ευτυχώς ο σύζυγος και τα άλλα παιδιά βρίσκονταν πιο μακριά. Η ίδια ήταν με το μικρό παιδί, το οποίο τραυματίστηκε ελαφρά και αποχώρησε από το νοσοκομείο. Οι ενέργειες που έγιναν ήταν νόμιμες ως προς την άδεια. Αυτό που δεν έγινε, και είναι κρίσιμο, ήταν η λήψη μέτρων προστασίας, όπως αποκλεισμός του χώρου για την ασφάλεια των περαστικών», αναφέρει ο δήμαρχος.
Από την πλευρά του ο δικηγόρος του μηχανικού που κατέθεσε για την άδεια του συγκεκριμένου κτηρίου, Αθανάσιος Ράπτης, με δελτίο Τύπου που εξέδωσε αναφέρει ότι ο πελάτης δεν είχε καμία σχέση με την εποπτεία και την έναρξη των εργασιών, αλλά η εμπλοκή του με την υπόθεση περιορίζεται στην έκδοση της. «Το Δικηγορικό μας γραφείο εκπροσωπεί ενώπιον των αρμοδίων Αρχών τον υπογράφοντα την Άδεια Έγκρισης Εργασιών Δόμησης Μικρής Κλίμακας για την επιδιόρθωση της επίμαχης οικοδομής Πολιτικό Μηχανικό. Εν όψει των ανακριβών γεγονότων τα οποία κάνουν το γύρο του διαδικτύου θα θέλαμε να διευκρινίσουμε τα κάτωθι:
Ο εντολέας μας ουδεμία εμπλοκή είχε με την έναρξη ή την συνέχιση οικοδομικών εργασιών στο επίμαχο μπαλκόνι – τοιχίο που κατέρρευσε και στην επίμαχη οικοδομή, οι οποίες εργασίες φαίνεται να πραγματοποιήθηκαν το Σάββατο 04-04-2026 στο σημείο, από άγνωστο στον εντολέα μας τεχνικό συνεργείο, από εργάτες που δεν γνώριζε ούτε κατ’ όψιν και χωρίς καμία δική του γνώση της εκτέλεσής τους.
Ο εντολέας μας ουδέποτε αρνήθηκε να εμφανιστεί στις Αρχές αντιθέτως δι’ εμού του πληρεξουσίου του δικηγόρου μόλις πληροφορήθηκε το τραγικό συμβάν δήλωσε στο Αστυνομικό Τμήμα Κορίνθου τα στοιχεία του, την ιδιότητά του και τον τόπο διαμονής του προκειμένου να θέσει εαυτόν ενώπιον του αρμοδίου Εισαγγελέα και να παράσχει διευκρινίσεις για την υπόθεση», αναφέρει η ανακοίνωση.
Μάλιστα, σύμφωνα με την ανακοίνωση του δικηγόρου του μηχανικού ο ίδιος κατέθεσε όλα τα χαρτιά που είχε στην διάθεση του στις αρχές για το εν λόγω οίκημα στην οδό Πηγάσου 70. «Απογευματινή ώρα της ίδιας ημέρας (04-04-2026) κατόπιν τηλεφωνικής επικοινωνίας με τους Αξιωματικούς του Αστυνομικού Τμήματος Κορίνθου, ο εντολέας μας παρουσιάστηκε αυτοβούλως ενώπιον των αστυνομικών και εισαγγελικών Αρχών όπου παρέδωσε όλα τα αποδεικτικά στοιχεία και έγγραφα που είχε στην διάθεσή του σχετικά με το εν λόγω οίκημα, από τα οποία προκύπτει ότι η εμπλοκή του με την υπόθεση περιορίζεται στην έκδοση της, σύμφωνα με τον Νόμο, οικοδομικής Άδειας Έγκρισης Εργασιών Δόμησης Μικρής Κλίμακας και ο ίδιος δεν είχε καμία εποπτεία, επίβλεψη ή γνώση για την έναρξη της εκτέλεσης του έργου. Εν συνεχεία ο εντολέας μας με εντολή του κ. Εισαγγελέα Κορίνθου που διενεργεί προκαταρκτική εξέταση, αφέθηκε ελεύθερος. Τέλος, ο εντολέας μου δι’ εμού εκφράζει δημοσίως τα ειλικρινή του συλλυπητήρια και την βαθιά του οδύνη προς την οικογένεια της εκλιπούσης άτυχης γυναίκας» αναφέρει η ανακοίνωση.
Πηγή: www.newsit.gr
